Listing provided courtesy of Tammy Atkin of Coldwell Banker Select Realty. Last updated . Listing information © 2025 Sandicor.
Asking Price: $895,000
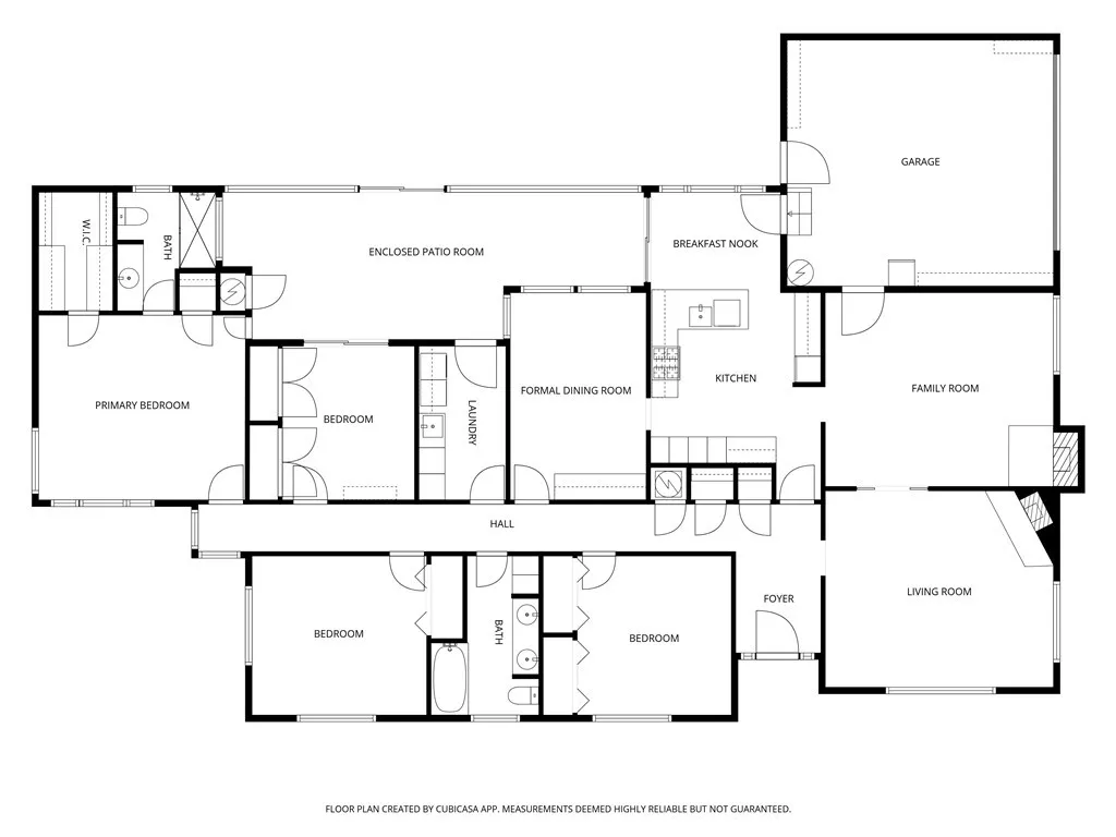
1260 Onstott, Lompoc CA 93436
Community:
This Residential property was built in 1975 and is priced at $895,000. Please see the additional details below.
Set on a beautifully landscaped lot surrounded by mature trees and natural privacy, this unique 4-bedroom, 2-bath home offers a rare blend of indoor-outdoor living. A long, inviting driveway creates a sense of arrival and seclusion from the moment you enter. Inside, the home welcomes you with a comfortable living room featuring a corner fireplace with rock hearth and a formal dining room for more traditional gatherings, while a separate family room with a built-in indoor grill offers a great space for casual entertaining. Dual paned windows throughout with custom shutters that enhance the living room, family room, and front bedrooms, add both style and efficiency. The kitchen opens with a breakfast bar to a dining area with views of the private backyard, creating a natural connection between indoor living and the outdoor setting. An inside laundry room with cabinets and sink adds everyday convenience. At the heart of the home is a light-filled enclosed sunroom that adds additional sqft to the homes original 2165sqft. Offering vaulted ceilings, skylights, and walls of glass that bring the outdoors in, this versatile space is ideal for relaxing or entertaining, with direct access to multiple patio areas. Step outside to the expansive backyard featuring paver patios, garden areas, winding pathways, and a canopy of established trees. Landscaping includes mature oaks and manzanita trees, along with fruit and flowering trees and ground cover, creating a peaceful garden retreat with space to enjoy, entertain, or simply unwind. Ideally located near local amenities, with convenient

























































