Listing provided courtesy of Rick Sufuentes of Parkway Real Estate Co.. Last updated . Listing information © 2025 Sandicor.
Asking Price: $435,000
2227 Hutchinson Street, Chico CA 95928
Community: Doe Mill
This Residential property was built in 2006 and is priced at $435,000. Please see the additional details below.
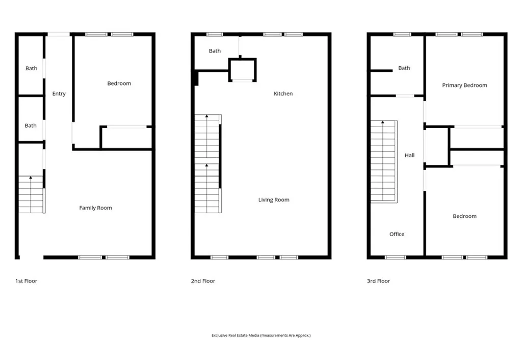
Welcome to 2227 Hutchinson Street, located in the highly sought-after Doe Mill neighborhood! This charming community is known for its tree-lined streets, nearby parks, scenic bike paths, and easy access to Meriam Park where you can enjoy shopping, dining, and entertainment. It truly offers a fun and vibrant lifestyle in a fantastic location. This spacious three-story single family dwelling features 3 bedrooms, 2.5 bathrooms, and multiple living spaces designed for flexibility and comfort. The first floor offers a large living area that can serve as a second living room, dining or gathering space, or even a potential in-law setup, complete with a bedroom and full bathroom on this level. The second floor is the heart of the home, featuring a welcoming family room and a spacious kitchen with beautiful cabinetry, granite countertops, a stylish backsplash, and stainless steel appliances. A convenient half bathroom is also located on this level. Upstairs, the third floor includes two generously sized bedrooms, a full bathroom, laundry and a built-in office areaperfect for working from home or a study space. Enjoy the inviting front porch and a private, oversized back patio, ideal for relaxing or entertaining, with direct access to your two owned parking spaces. With no HOA and its low-maintenance design, thoughtful layout, and unbeatable location, this home is a wonderful opportunity to enjoy the best of Doe Mill living.












































