Listing provided courtesy of Todd Myatt of Century 21 Masters. Last updated . Listing information © 2025 Sandicor.
Asking Price: $690,990
3175 Silo Paseo, Ontario CA 91761
Community: Springhill
This Residential property was built in 2026 and is priced at $690,990. Please see the additional details below.
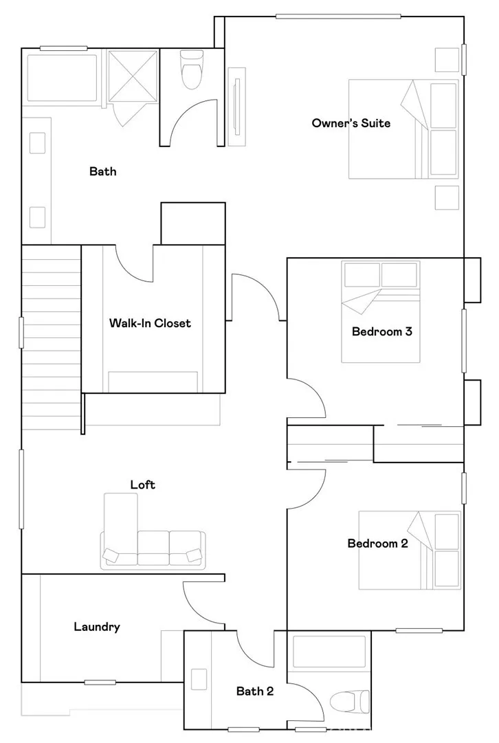
NEW CONSTRUCTION! Includes Upgraded Flooring! With a spacious and flexible open-concept floorplan on the first level, this new two-story home provides a modern layout perfect for modern lifestyles. A versatile flex space shares the second floor with two bedrooms and a luxurious owners suite, complete with a full bathroom and walk-in closet. The kitchen features miami vena white quartz and white cabinetry. Copperstone is a new collection of single-family homes for sale at the Springhill masterplan, now selling in Ontario, CA. Residents will enjoy access to available amenities within the masterplan, including a swimming pool, tot lot, park and more. Shopping and dining options are a short drive away at Ontario Mills Mall, along with nearby entertainment destinations like Top Golf. Plus, easily plan trips and travel with proximity to the Ontario Airport.

























