Listing provided courtesy of Darryl Bolton of Pacific Sotheby's Int'l Realty. Last updated . Listing information © 2025 Sandicor.
Asking Price: $1,900,000
2361 Overland, Los Angeles CA 90064
Community:
This Residential property was built in 1948 and is priced at $1,900,000. Please see the additional details below.
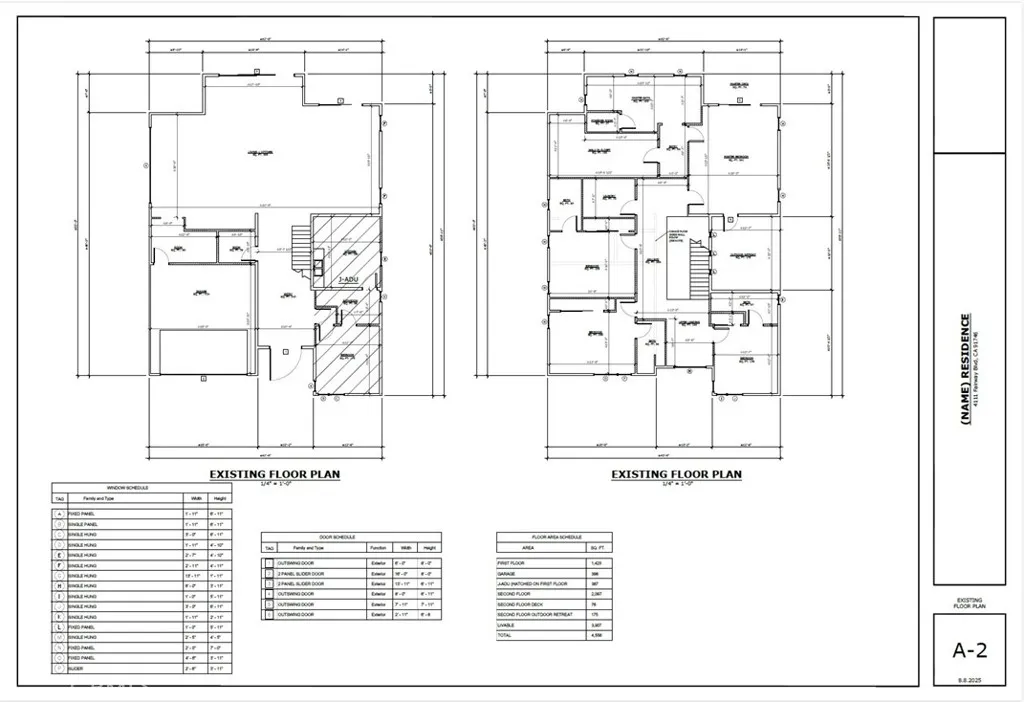
2361 Overland Ave, Los Angeles presents a rare opportunity to acquire a mid-construction fixer with substantial progress already completed and a clear path to a high-end finished product. When completed, the residence is designed to offer approximately 3,400 square feet of living space with 4 bedrooms and 5.5 bathrooms, thoughtfully planned for modern luxury living. The current build includes a dedicated whiskey room, expansive living areas, and a layout conducive to seamless indoor-outdoor flow. The property is designed to accommodate a pool and spa, and offers potential for an JADU (Buyer to verify feasibility and permits). The addition of the JADU would increase the total livable sqft to 3,907. Approximately 50% of the renovation has been completed, providing a strong head start while allowing the next owner to complete the project with their own design vision and finishes. Ideal for investors, developers, or end users seeking a custom build, this property offers significant upside in a desirable Los Angeles location. Project requires completion and is being sold as-is, with Buyer to conduct all due diligence regarding plans, permits, scope of work, and final square footage.







































