Listing provided courtesy of Scott Ehrke of GUIDE Real Estate. Last updated . Listing information © 2025 Sandicor.
Asking Price: $150,000
5725 Silverado, Paso Robles CA 93446
Community: Ground Squirrel Hollow
This Lot property was built in and is priced at $150,000. Please see the additional details below.
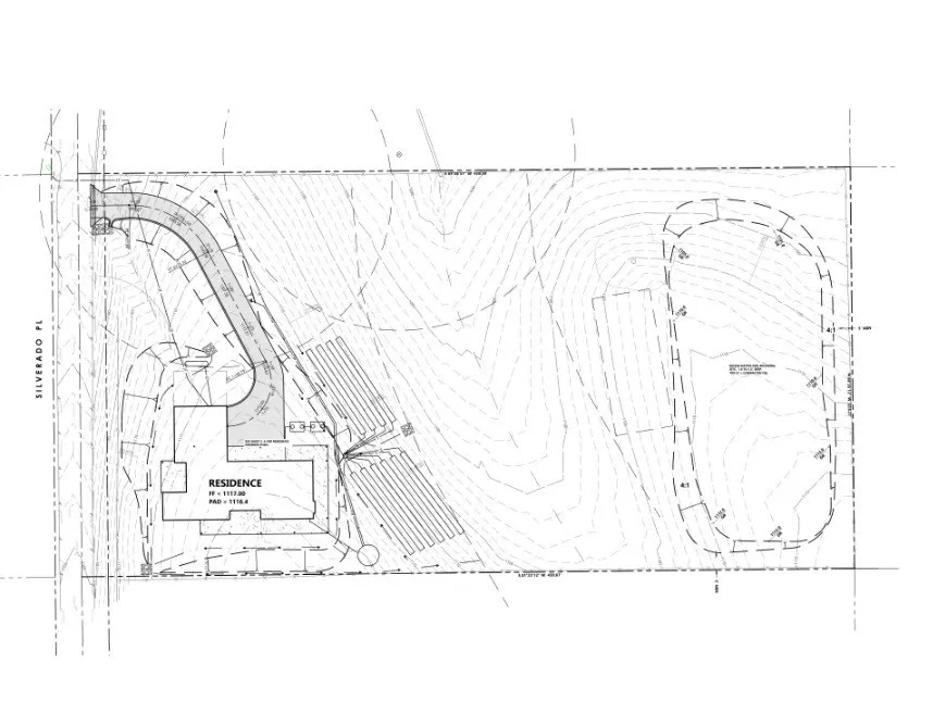
Gorgeous 2.3 Acre parcel in the heart of Paso Robles Wine Country. This gently rolling acreage parcel has an elevated building site, providing lovely views of the surrounding countryside and the Santa Lucia Mountains to the west. The parcel and views are lovely, but the real advantage of this property is the owner's significant financial and time investment into building plans for the perfect country home - ready to submit for county approvals! The 2,490SF single level home was designed with amazing wrap-around covered porches to extend the indoor living... out. The garage was also designed for adding an ADU or guest unit above it! With nearly 30K spent to date on engineering, design and construction documents, you'll quickly recognize this property offers a unique opportunity to take advantage of the owner's time and financial investment! Paved road frontage and existing perimeter fencing are also nice features. If the country life is calling your name, you won't want to miss this call!







































