Listing provided courtesy of Elvia Gonzalez of Reliable Real Estate Company. Last updated . Listing information © 2025 Sandicor.
Asking Price: $420,000
744 AMADOR, Los Angeles CA 90012
Community: SOLANO CANYON
This Lot property was built in and is priced at $420,000. Please see the additional details below.
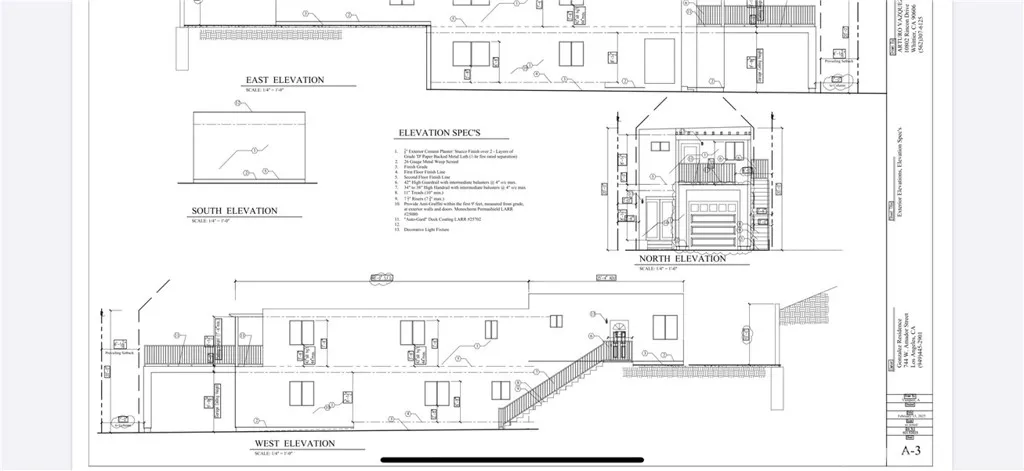
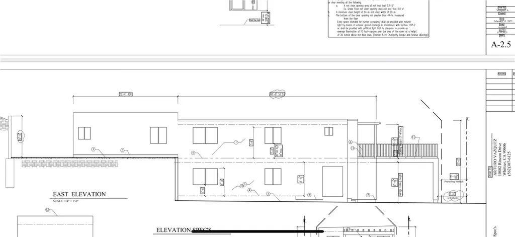
LOCATION, LOCATION, LOCATION! Near RTI (Ready to Issue) Permits with LA City! Lucrative Vacant Land Opportunity adjacent to Dodger Stadium! Dont miss this RARE FLAT R-1 vacant lot with permits in the heart of the Historic Solano Canyon neighborhood, with the Dodger Stadium literally in your very own backyard and minutes from Downtown L.A. Permit plans included for a stunning two-story, 3 Bedroom /2 Bathroom Single Family Residence plus an Additional Dwelling Unit (approx. 1,800 sq. ft. total Includes a 1 Bedroom/1 Bath, Laundry hook-ups) ready for your next high-value build! Prime R-1 Zoned Flat Lot with permits After Construction Value estimated around $2.0 Million+ Three doors from Historic Mission Conrado Quick 110 Freeway access (just 500 yards away) Excellent development or investment opportunity Exceptional Investment Rental for this New Construction House commands an approx $7,500 +- per/mo. PLUS ADU Rental approx $2,700. +- per mo. Value in Land! Build, invest, or create your dream home in one of L.A.s most desirable and historic enclaves! Buyer can acquire a Construction Loan to build. Contact us for details. Owners are the Listing agents. All information deemed reliable. Buyer to conduct due diligence and verify all information.












