Listing provided courtesy of Tianwei Dong of Harvest Realty Development. Last updated . Listing information © 2025 Sandicor.
Asking Price: $4,400,000
627 Sierra Madre, Azusa CA 91702
Community: Rosedale
This Lot property was built in and is priced at $4,400,000. Please see the additional details below.
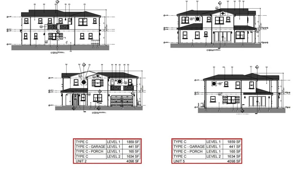
Building department approved/Fire Department approved An exceptional and rare development opportunity in the highly sought-after Rosedale neighborhood. This 2.03-acre parcel offers the potential to create an exclusive 8-home single-family community in one of the most desirable residential enclaves in the San Gabriel Valley. Key Highlights: Total Land Area: 2.03 acres Proposed Units: 8 single-family homes Total Buildable Area: Approximately 31,243 square feet Utilities: All major utilities available nearby Neighborhood: Surrounded by newly built homes, landscaped parks, and scenic walking trails Investment Potential: This property represents a rare infill development site within the established and upscale Rosedale community a location where new construction opportunities are increasingly limited. Its scale and zoning make it ideal for boutique developers seeking to build a small gated enclave of luxury single-family residences with strong buyer demand and premium resale value. Highlights at a Glance: Prime Rosedale location with strong market fundamentals easy access to major freeways and Metro Gold Line Walking distance to community parks Dont miss this rare chance to develop in one of Rosedales most coveted neighborhoods















