Listing provided courtesy of Robert Marroche of Coldwell Banker-Campbell Rltrs. Last updated . Listing information © 2025 Sandicor.
Asking Price: $1,859,000
8401 Dallas, Huntington Beach CA 92646
Community: Huntington Beach Landmark
This Residential property was built in 1977 and is priced at $1,859,000. Please see the additional details below. 
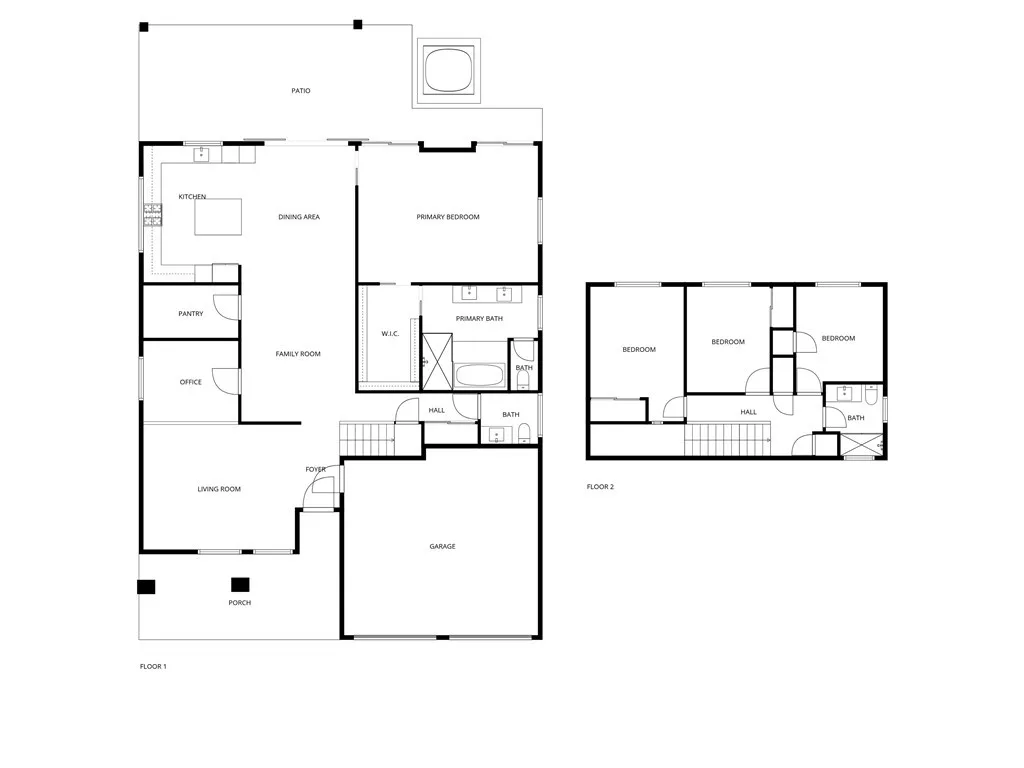
This stunning Huntington Beach Landmark home is an absolute must-see! Situated just minutes from the beach and the Newland Center, this property combines both luxury and convenience in one of the most sought-after neighborhoods. An extra-large interior corner lot offers ample space, privacy, and easy access to everything Huntington Beach has to offer. The home has open living areas with plenty of room to relax, work, and entertain. Includes a separate office space, true conditioned wine room, dining area and large hang-out area. The gourmet kitchen is designed for the home chef, featuring top-of-the-line KitchenAid appliances, custom cabinetry, and picture window. Four bedrooms, with the luxurious primary bedroom located on the ground floor. Step outside to your private backyard oasis complete with a pergola, tiled patio, built-in BBQ, firepit, and hot tub. Enjoy evenings by the fire while surrounded by established fruit trees, including oranges, mandarins, persimmons, avocados, and more.




























































