Listing provided courtesy of John Villeneuve of Legacy Real Estate. Last updated . Listing information © 2025 Sandicor.
Asking Price: $969,990
18603 Toehee Street, Perris CA 92570
Community:
This Residential property was built in 2005 and is priced at $969,990. Please see the additional details below.
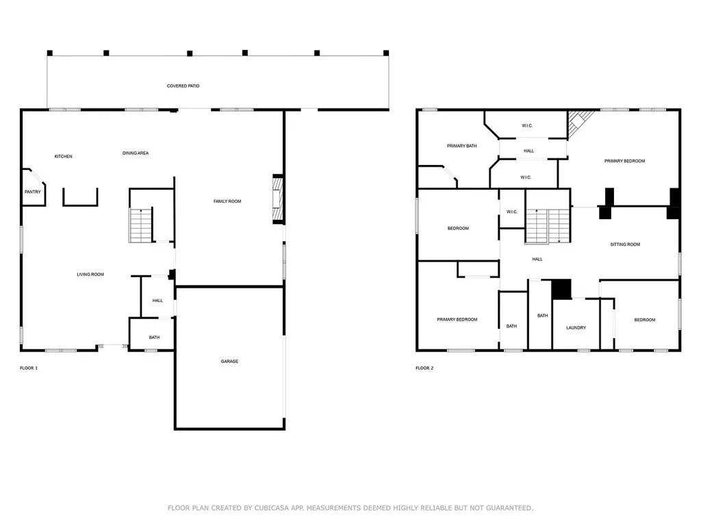
WELCOME HOME TO YOUR MASSIVE URBAN PARADISE !! 4150 SQUARE FEET AND OVER AN ACRE OF GATED SERENITY AND BEAUTY..AND ONLY MINUTES FROM THE REST OF THE URBAN WORLD !! 4 BEDROOMS AND 3 1/2 BATHS ..4 CAR GARAGE..PAVED RV SPACE WITH AUTO LIFT POTENTIAL AND UPGRADES ALREADY IN PLACE..BACKYARD HAS ENOUGH ROOM TO DREAM ON A GRAND SCALE ..POOL..PICKLE BALL..MULTIPLE ADU.. OUTDOOR KITCHEN STYLE COVERED PATIO WITH BIG TV, FIRE PIT, BBQ MISTER SYSTEM, FANS AND EVEN MOOD LIGHTING BEGGING FOR WEEKEND GATHERINGS AND WEEKDAY ESCAPES ..COZY COVERED SPA TO SOOTH THE ACHES AND PAINS WHILE ENJOYING THE VIEWS OUT BACK... LETS GO INSIDE TO THE FANTASTIC CHEF KITCHEN WITH LOTS OF STAINLESS AND GRANITE, LARGE ISLAND, WALK IN PANTRY AND STORAGE GALORE.. WANDERING INTO THE BRIGHT AND OPEN FLOORPLAN YOU'LL NOTICE THE EXTEREMLY FUNCTIONAL LAYOUT ON THE GROUND FLOOR AND THE SUBTLE PATH TO THE 2ND FLOOR ...WHERE THE 3 SPACIOUS BEDROOMS AWATE YOUR FAMILY AND FRIENDS ...EACH WITH ITS OWN BATHROOM GYM / EXERCISE ROOM, STUDIO, HOME OFFICE...ROOM FOR ALL OF THEM... NEXT UP--AN INVITING MAIN SUITEWITH FIREPLACE, WALK IN CLOSETS, DUAL VANITIES ALL LEADING TO WALK IN SHOWER AND SEPERATE SOAKER TUB. TWO TWIN OVERSIZED GARAGES HOLD 4 VEHICLES HAVE BUILT IN FEATURES, SINK, 220 ELECTRIC AND LOTS OF EXPANSION POTENTIAL.. BACK RV SLAB HAS BEEN CUSTOM REINFORCED FOR CAR LIFT--12" CONCRETE-- HOBBY AUTO RESTORATION AND REPAIR MECCA-- AND A LOOOONG DRIVEWAY LEADS TO THE HOME FOR EZ PARKING FOR LOTS OF FRIENDS. COME VISIT THE STYLE AND VALUE PERRIS OFFERS ...THE NEW HOME BUILDERS SEE IT.. AND ENJOY THE BENEFITS OF BEING UR





































