Listing provided courtesy of Melissa Arena of Coldwell Banker Realty. Last updated . Listing information © 2025 Sandicor.
Asking Price: $1,849,000
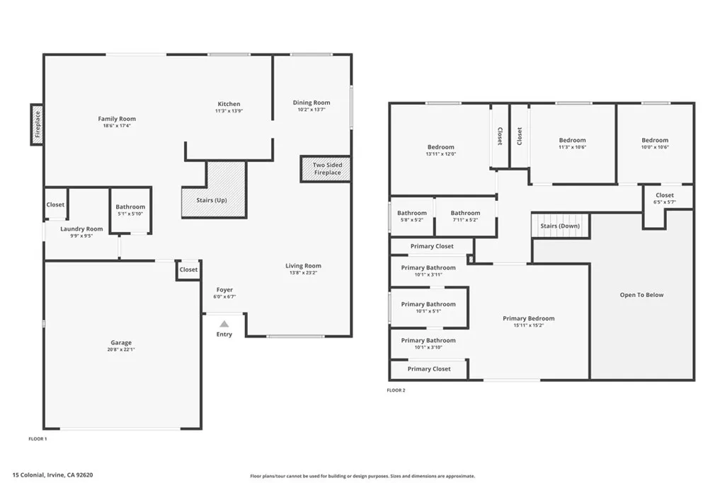
15 Colonial, Irvine CA 92620
Community: 
This Residential property was built in 1977 and is priced at $1,849,000. Please see the additional details below. 
Welcome home to 15 Colonial, a stylish Northwood gem that blends elegance with a splash of fun. This 2-story pool home offers 4 bedrooms, 2.5 bathrooms, & 2,391 sq. ft. of thoughtfully designed living space on a 5,247 sq. ft. lot. Inside, the thoughtful floor plan shines with a kitchen that opens seamlessly to the family room with a cozy fireplace, plus a formal dining room & living room for when the occasion calls for something a little more polished. And because one fireplace is never enough, this home boasts threeincluding a dual-sided statement piece between the dining & formal living room. Upstairs, the primary suite retreat is complete with its own private balcony, perfect for sunrise coffee or sunset unwinding while three additional bedrooms provide plenty of space for family, guests, or a home office. Step outside & youll find your very own backyard paradise: a sparkling pool & patio ready for barbecues, lounging, & year-round California vibes. And heres the best kept gemno HOA and no Mello Roos. Just pure Irvine living in the coveted Northwood community, close to parks, endless hiking, biking, outdoor recreation, shopping, and dining. 15 Colonial isnt just a homeits your chance to live a lifestyle along with award-winning schools and just enough sass to keep life fun.













































