Listing provided courtesy of Jose Ponce of PONCE & PONCE REALTY, INC. Last updated . Listing information © 2025 Sandicor.
Asking Price: $145,000
Center, Colton CA 92324
Community:
This Lot property was built in and is priced at $145,000. Please see the additional details below.
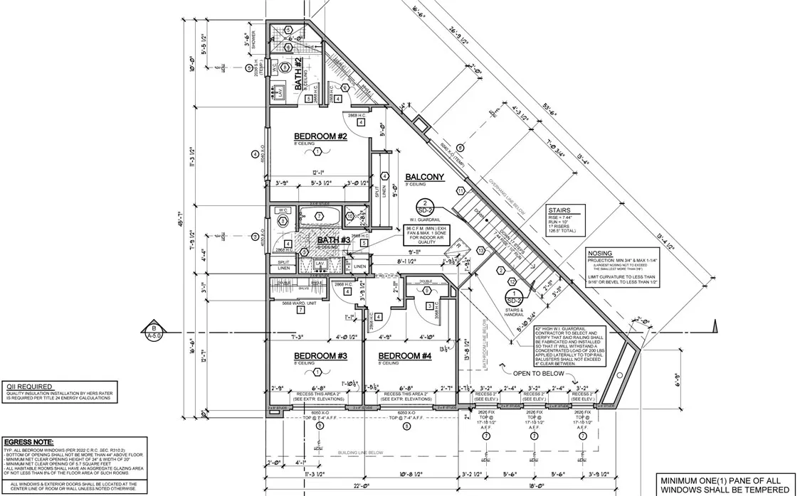
BUYER NOT PERFORMING *** BACK ON THE MARKET *** BUILD A PANORAMIC VIEW HOME FOR THE PRICE OF A CONDO!!! Nice corner lot in one of the best areas of Colton. Tucked between Grand Terrace and Colton, this lot offers seclusion and access to all the amenities in the city: shopping, excellent schools, the freeway, hospitals, places of work and worship, etc. A great opportunity to live and work within minutes. The seller is including fully finished building plans for a two-story residence in a nice size lot. The house offers a master suite, kitchen, dining and high ceiling living room, one and a half bath downstairs. The second floor has a Jr. suite and two more big bedrooms, two full baths and balcony. A two car garage with laundry hookups and a nice porch for those California sunsets. The soil test and grading plan are about to be ready when we close escrow. The house is the rendering of the front elevation as per current professional plans. Just submit to the city for approval and viola! You'll be ready to break ground. Call for more details and please buyer and buyer's agent to do their own independent due diligence, this lot at this price is bound to be gone soon!!!















