Listing provided courtesy of Susana Xu of Treelane Realty Group Inc.. Last updated . Listing information © 2025 Sandicor.
Asking Price: $3,500,000
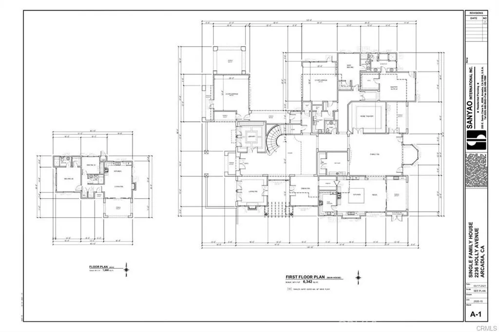
2236 Holly, Arcadia CA 91007
Community:
This Lot property was built in and is priced at $3,500,000. Please see the additional details below.
Presenting an unparalleled opportunity to create your dream residence, 2236 Holly Avenue stands as one of the largest lot in the esteemed Arcadia region. Boasting over 1 acre of pristine land, this beautiful vacant lot is an ideal canvas for the realization of your bespoke home vision (refer to images for Robert Tong plans). Renowned luxury home designer Robert Tong, distinguished for his expertise in the Arcadia Area, has meticulously crafted plans that have submitted to the City of Arcadia. These plans embrace a vision of opulence, allowing for the construction of a lavish 10,492 square feet main house, complemented by a 1,000 square feet 2 bedrooms ADU, a 55-foot long swimming pool, and a full-size tennis court. Situated within the highly acclaimed Baldwin Stocker and Arcadia High School District, this property guarantees access to exceptional educational institutions, adding intrinsic value. Beyond its educational merits, the property enjoys a tranquil ambiance in a quiet neighborhood, coupled with convenient proximity to various amenities. Residents will benefit from the property's strategic location, offering easy access to Elementary, Middle, and High Schools, The Shops at Santa Anita, Santa Anita Race Track, Golf Course, Restaurants, Supermarkets, and Methodist Hospital, among other notable establishments. Embrace the rare chance to secure one of the the largest lot in Arcadia.











